ホームブログリノベーションマンション【リノベーションマンション】北砂四丁目住宅

【リノベーションマンション】北砂四丁目住宅

アイレントが手掛けるリノベーションマンションプロジェクトをで、改修工事が進んでいる東京都江東区にある「北砂四丁目住宅」をご紹介します。

【北砂四丁目住宅の概要】
所 在 地:東京都江東区北砂4丁目19−30
交  通:東京メトロ東西線 南砂町駅 徒歩15分
建物規模:鉄骨鉄筋コンクリート造14階建
総 戸 数:526戸
築 年 月:1972年6月
分 譲 主:東京都住宅供給公社
施工会社:清水建設
管理会社:大和ライフネクスト

北砂四丁目住宅は、東京都住宅供給公社が分譲し、清水建設が施工しています。
また、現在の管理体制も充実しており、管理室にスタッフが常駐しており、防犯カメラ・宅配ボックスなどの共用設備も充実しています。
526世帯のビッグコミュニティですが、エレベーターは6台あるため、朝の通勤時間帯などでも、「エレベーターになかなか乗れない」などの心配もありません。

アイレントは、北砂四丁目住宅の321号室を不動産買取し、リノベーションマンションとして再生して販売を行っています。

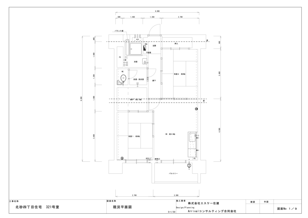
施工前の居室の状況は、長年賃貸されていたため劣化や汚れが酷く、また、住宅設備も「昭和時代」のままであったため、大規模な改修が必要でした。
そこで、躯体の状態まで解体し、新たに現在のライフスタイルにあった間取りに改修することにしました。

リノベーションを行うにあたってのポイントは次の通りです。

・限られた空間の中で、10帖以上のLDKを作りたい
・家族3人がゆとりを持って暮らせる空間を作りたい
・LDKと一体の空間であっても、仕事や勉強などに集中できる空間を作りたい

この物件は、専有面積が54㎡ですので、なかなか10帖以上のLDKを確保するのは容易ではありませんが、アイレンとはここに14帖のLDKを確保しました。
また、夫婦の寝室にはダブルベットを入れても余裕がある空間になっていますし、子供部屋もベットと学習机をうまく配置できるようにデザインしています。

LDKの中に仕事や勉強に集中できる空間も確保しましたので、テレワークのスペースや書斎コーナーとして活用できます。

完成予定図は次の通りです。

改修前は、住宅設備も古く使い勝手も悪いものでしたが、全て最新の住宅設備に交換しています。また、段差も小さくするように計画しているため、小さなお子様がいる世帯や高齢者世帯でも安心して暮らすことができるように配慮しています。

スケルトン状態にして、専有室内の給水・給湯管、排水管も全て新しいものに交換していますので、築年が経過しているマンションでも安心して暮らすことができます。この様な状態は、完成すると見ることができませんので、この機会にご確認ください。

現在、完成に向けて大工さんたちが丁寧に作業をしています。完成予定は2020年11月末の予定ですので、ぜひ、完成後の物件をご覧になって下さい。

アイレントがお届けする北砂四丁目住宅321号室の物件概要は次の通りです。

アイレントが直接売主になりますので、アイレントにお問い合わせ頂ければ

仲介手数料無料

となります。

また、アイレントに直接お問い合わせ頂き、11月末までにご契約の方には特別なサービスがございます。詳しくはアイレントまでお問い合わせください。

お問い合わせ先

株式会社アイレント
03−5952−8255

また、工事の進捗状況をお知らせします。

この記事を書いた人
ai-rent
カテゴリ
リノベーションマンション
page top